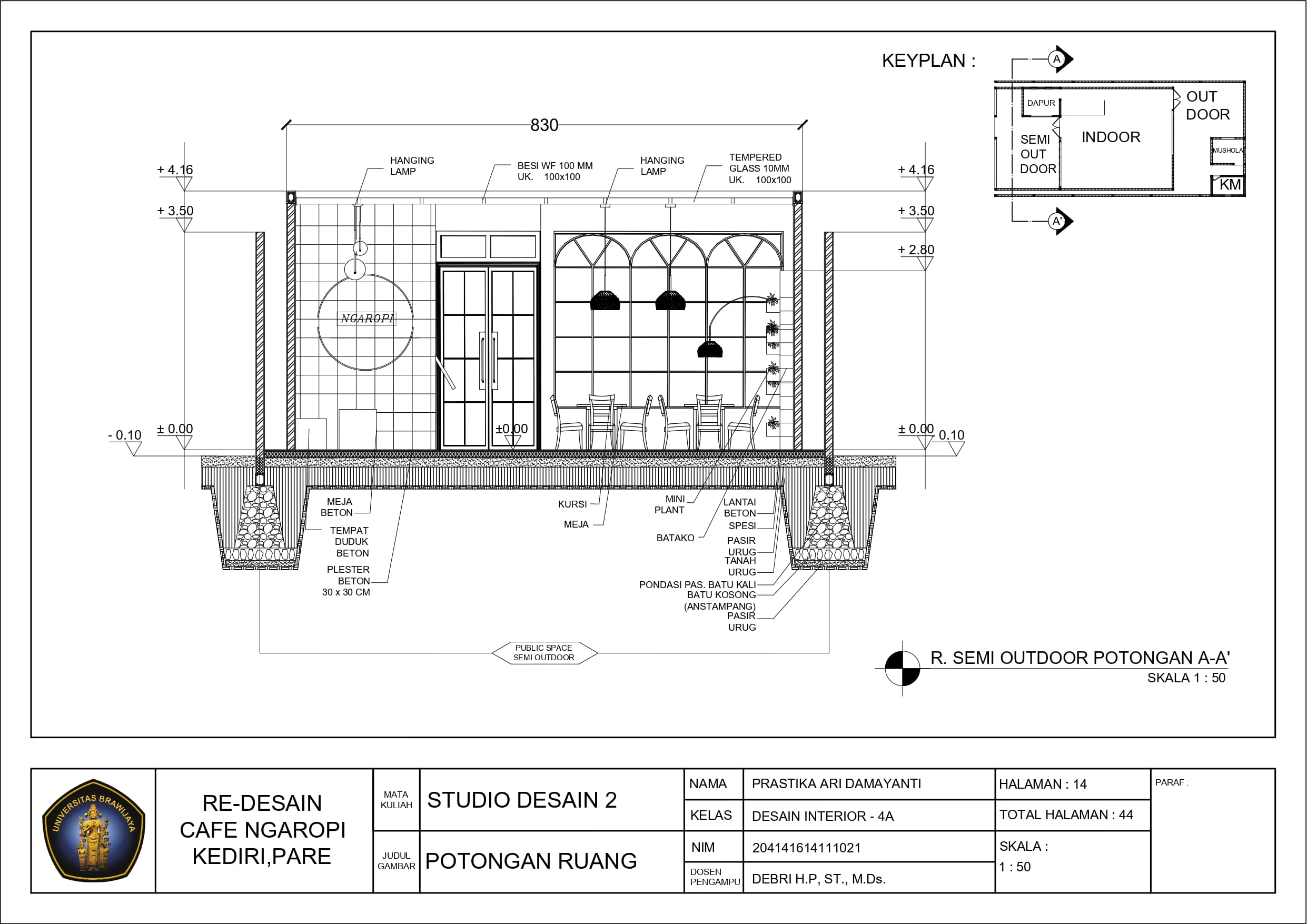
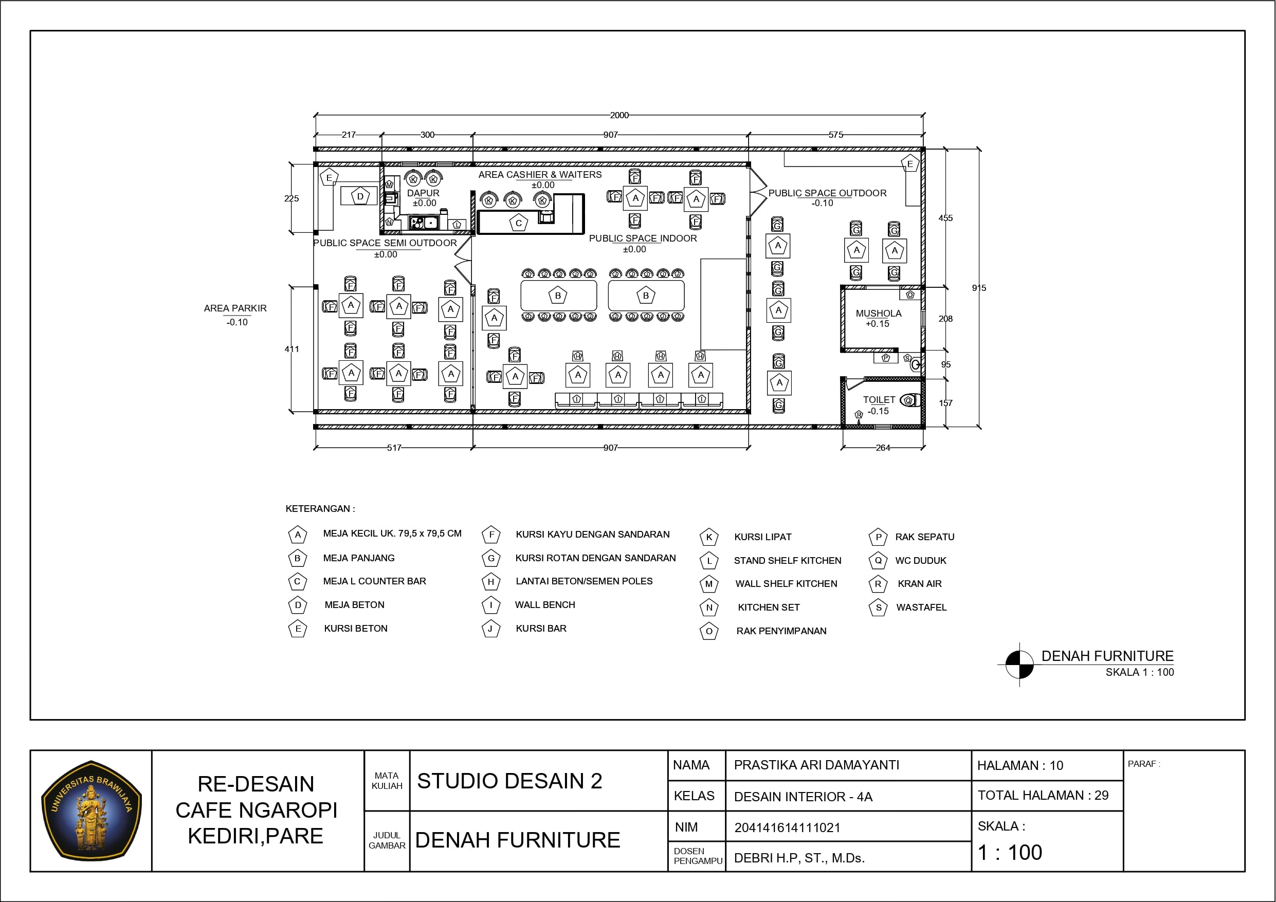
Project information

  • Title: NGAROPI CAFE PARE
  • Project Year: 2022

NGAROPI CAFE PARE

CAFE INI BANYAK DIKUNJUNGI PELANGGAN SEHINGGA MEMBUTUHKAN RUANG DENGAN SIRKULASI YANG BAIK. DENGAN PENGUNJUNG YANG BANYAK SEHINGGA AREA DAPUR JUGA MEMBUTUHKAN SIRKULASI YANG LUAS. SELAIN ITU, PADA PENCAHAYAAN DI BEBERAPA AREA MASIH KURANG KARENA BANYAK TERTUTUPI VEGETASI YANG TIDAK TERAWAT. DIPERLUKAN FURNITURE YANG CUKUP UNTUK CUSTOMER KHUSUSNYA REMAJA